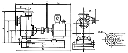
※ 機組及安裝尺寸
![]() |
|
50CYZ-20 50CYZ-75 80CYZ-32 100CYZ-40A 65CYZ-30 25CYZ-27 |
![]() |
|
100CYZ-125 250CYZ-50 150CYZ-65 |
| 泵型號 | 電動機 | L | L1 | L2 | L3 | L4 | L5 | L6 | L7 | δ | H | H1 | H2 | H3 | B | B1 | B2 | n-d | D1 | D2 | D3 | n1-d1 | |||||
| 型號 | 功率kw | ||||||||||||||||||||||||||
| 250CYZ-50 | CYZ-YB280M-4 | 90 | 1000 | 1755 | 2496 | 125 | 857 | 1541 | 953 | 2 | 450 | 1100 | 1280 | 8 | 798 | 858 | 330 | 4-φ22 | φ390 | φ350 | φ250 | φ12-23 | |||||
| 200CYZ-125 | YB315M-2 | 132 | 1201 | 1878 | 2822 | 133 | 730 | 1478 | 1342 | 2 | 455 | 985 | 1220 | 40 | 810 | 870 | 340 | 4-φ22 | φ335 | φ295 | φ200 | φ8-23 | |||||
| 150CYZ-125 | YB315S-2 | 110 | 1236 | 1857 | 2632 | 115 | 630 | 1368 | 1262 | 2 | 455 | 895 | 1125 | 40 | 895 | 955 | 340 | 4-φ23 | φ290 | φ240 | φ150 | φ8-23 | |||||
| 100CYX-125 | YB280S-2 | 75 | 1017 | 1617 | 1877 | 155 | 210 | 843 | 1031 | 2 | 380 | 680 | 905 | 35 | 680 | 740 | 330 | 4-φ22 | φ215 | φ180 | φ100 | φ8-18 | |||||
| 80CYZ-125 | YB250M-2 | 55 | 950 | 1450 | 1734 | 140 | 195 | 778 | 954 | 2 | 350 | 600 | 818 | 35 | 560 | 620 | 330 | 4-φ22 | φ195 | φ160 | φ80 | φ4-18 | |||||
| 200CYZ-63 | YB280M-4 | 90 | 1000 | 1755 | 2474 | 125 | 708 | 1412 | 1060 | 80 | 2 | 450 | 980 | 1210 | 8 | 798 | 858 | 330 | 4-φ22 | φ335 | φ295 | φ200 | φ8-23 | ||||
| 150CYZ-65 | YB250M-4 | 55 | 1154 | 1564 | 2229 | 0 | 625 | 1207 | 1136 | 2 | 490 | 930 | 1130 | 9 | 820 | 672 | 880 | 330 | 4-φ22 | φ280 | φ240 | φ150 | φ8-22 | ||||
| 150CYZ-55 | YB225M-2 | 45 | 1280 | 1452 | 2168 | 70 | 628 | 1310 | 855 | 2 | 396 | 836 | 946 | 9 | 500 | 548 | 290 | 4-φ22 | φ280 | φ240 | φ150 | φ8-22 | |||||
| 100CYZ-75 | YB200L1-2 | 30 | 780 | 1290 | 1572 | 116 | 272 | 750 | 819 | 62 | 2 | 335 | 555 | 985 | 40 | 546 | 606 | 290 | 4-φ22 | φ215 | φ180 | φ100 | φ8-18 | ||||
| 100CYZ-65 | YB200L1-2 | 30 | 780 | 1290 | 1572 | 116 | 272 | 750 | 819 | 62 | 2 | 335 | 555 | 985 | 40 | 546 | 606 | 290 | 4-φ22 | φ215 | φ180 | φ100 | φ8-18 | ||||
| 100CYZ-40A | YB180L-4 | 22 | 730 | 1322 | 1564 | 145 | 210 | 750 | 811 | 2 | 380 | 550 | 855 | 40 | 640 | 700 | 240 | 4-φ22 | φ215 | φ180 | φ100 | φ8-18 | |||||
| 100CYZ-40 | YB180M-2 | 22 | 730 | 1229 | 1510 | 133 | 218 | 750 | 757 | 62 | 2 | 320 | 530 | 960 | 35 | 450 | 510 | 240 | 4-φ22 | φ215 | φ180 | φ100 | φ8-18 | ||||
| 80CYZ-70 | YB180M-2 | 22 | 730 | 1229 | 1479 | 133 | 218 | 750 | 743 | 54 | 2 | 310 | 460 | 930 | 35 | 450 | 510 | 240 | 4-φ22 | φ195 | φ160 | φ80 | φ4-18 | ||||
| 80CYZ-55 | YB160L-2 | 18.5 | 790 | 1125 | 1363 | 45.5 | 206 | 648 | 712 | 2 | 290 | 460 | 665 | 35 | 420 | 480 | 240 | 4-φ22 | φ195 | φ160 | φ80 | φ4-18 | |||||
| 80CYZ-32 | YB132S2-2 | 7.5 | 480 | 823 | 1040 | 70.5 | 195 | 554 | 483 | 72 | 2 | 225 | 395 | 590 | 30 | 360 | 410 | 210 | 4-φ18 | φ195 | φ160 | φ80 | φ4-18 | ||||
| 80CYZ-25 | YB132s2-2 | 7.5 | 480 | 823 | 1040 | 70.5 | 195 | 554 | 483 | 72 | 2 | 225 | 395 | 590 | 30 | 360 | 410 | 210 | 4-φ18 | φ195 | φ160 | φ80 | φ4-18 | ||||
| 80CYZ-17 | YB112m-2 | 4 | 610 | 773 | 1017 | 20 | 191 | 547 | 467 | 50 | 2 | 208 | 368 | 534 | 30 | 340 | 380 | 225 | 4-φ18 | φ195 | φ160 | φ80 | φ4-18 | ||||
| 80CYZ-13 | YB100L-2 | 3 | 500 | 771 | 970 | 55 | 153 | 525 | 442 | 2 | 200 | 350 | 498 | 30 | 370 | 420 | 225 | 4-φ18 | φ185 | φ150 | φ76 | φ4-14 | |||||
| 65CYZ-30 | YB112M-2 | 4 | 480 | 771 | 1014 | 70.5 | 198 | 541 | 470 | 2 | 220 | 390 | 595 | 30 | 360 | 404 | 225 | 4-φ18 | φ185 | φ145 | φ65 | φ4-18 | |||||
| 65CYZ-15 | YB100L-2 | 3 | 500 | 771 | 970 | 55 | 153 | 525 | 442 | 2 | 200 | 350 | 488 | 30 | 370 | 420 | 225 | 4-φ18 | φ185 | φ145 | φ65 | φ4-18 | |||||
| 50CYZ-75 | YB160M1-2 | 11 | 800 | 1092 | 1284 | 27 | 155 | 620 | 662 | 88 | 2 | 258 | 428 | 604 | 30 | 428 | 468 | 240 | 4-φ18 | φ135 | φ103 | φ50 | φ4-14 | ||||
| 50CYZ-60 | YB132S2-2 | 7.5 | 640 | 923 | 1153 | 60 | 174 | 525 | 120 | 41 | 2 | 265 | 435 | 620 | 30 | 360 | 410 | 240 | 4-φ18 | φ160 | φ125 | φ50 | φ4-14 | ||||
| 50CYZ-50 | YB132S1-2 | 5.5 | 500 | 785 | 997 | 65 | 162 | 484 | 511 | 2 | 220 | 357 | 529 | 30 | 360 | 404 | 240 | 4-φ18 | φ130 | φ100 | φ50 | φ4-14 | |||||
| 50CYZ-35 | YB112M-2 | 4 | 500 | 766 | 989 | 33 | 173 | 515 | 472 | 2 | 220 | 380 | 530 | 30 | 340 | 390 | 225 | 4-φ18 | φ130 | φ100 | φ50 | φ4-14 | |||||
| 50CYZ-20 | YB90L-2 | 2.2 | 500 | 630 | 816 | 10 | 138 | 418 | 395 | 6 | 2 | 191 | 326 | 463 | 30 | 350 | 380 | 225 | 4-φ18 | φ135 | φ103 | φ50 | φ4-14 | ||||
| 50CYZ-12 | YB90S-2 | 1.5 | 340 | 655 | 863 | 67 | 161 | 482 | 369 | 5 | 2 | 135 | 305 | 465 | 30 | 275 | 325 | 225 | 4-φ18 | φ140 | φ110 | φ50 | φ4-14 | ||||
|
40CYZ-40 (50CYZ-40) |
YB112M-2 | 4 | 500 | 764 | 1002 | 33 | 177 | 528 | 472 | 2 | 220 | 380 | 535 | 30 | 370 | 420 | 225 | 4-φ18 | φ130 | φ100 |
φ40 φ50 |
φ4-14 | |||||
| 40CYZ-20 | YB802-2 | 1.1 | 320 | 578 | 760 | 70 | 137 | 412 | 339 | 38 | 2 | 195 | 300 | 436 | 30 | 280 | 330 | 225 | 4-φ18 | φ130 | φ120 | φ100 | φ90 | φ40 | φ32 | φ4-14 | |
| 25CYZ-27 | YB801-2 | 0.75 | 320 | 578 | 760 | 70 | 137 | 412 | 339 | 32 | 2 | 195 | 300 | 436 | 30 | 280 | 330 | 225 | 4-φ18 | φ115 | |||||||
性能曲線圖
![]() |
![]() |
![]() |
![]() |



















